Rave Assembly

Detroit, MI

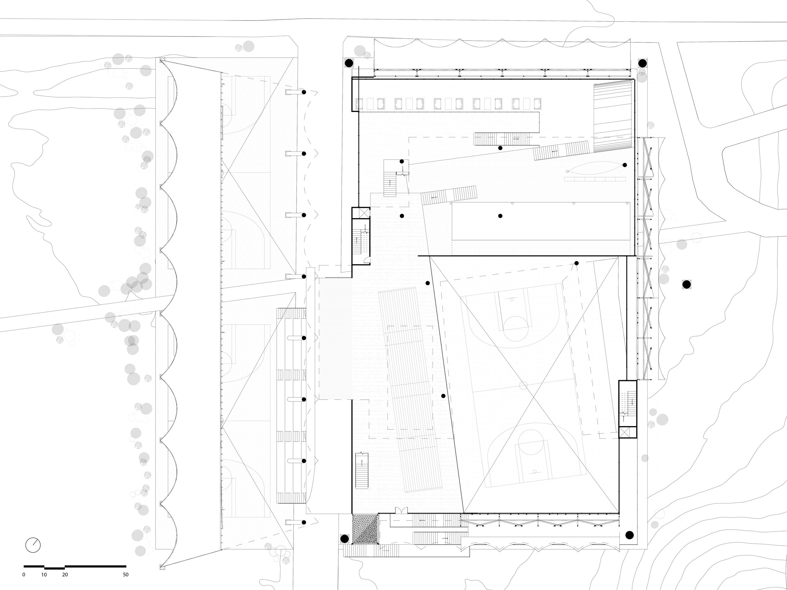
Set in Detroit, this project reimagines the gymnasium as a flexible public space shaped by the rhythms of the body and the cultural energy of the city. Drawing inspiration from rave culture—where temporary spaces are transformed into sites of connection, release, and identity—the design embraces vulnerability and movement as central architectural values. Circulation becomes part of the spatial choreography. Pathways intersect the site and the building, creating loops that connect an outdoor gym, interior programs, and a sculpted mound for rest or performance. Every element—from the tented canopy to the open-air-gym—invites transformation. Spaces designed for fitness in the day become arenas for dance and social gathering at night. This architecture does not treat the body as a passive occupant but as a force that shapes and redefines space. The building responds to human energy, enabling spontaneous encounters, emotional safety, and physical expression. It resists rigidity in favor of openness and multiplicity—embracing Detroit’s legacy of reinvention and celebrating its culture of resilience, community, and joy.

Instructor: Erik Herrmann

Year: Spring 2025

Course: Architectural Design VI, Gui Competition

"bamboo"

fragility as interdependence

The sticks yet they hold one another in balance, forming a system where no piece stands on its own. The fragility lies in the collective; if one element shifts or fails, the system collapses. It echoes how certain architectural systems rely on mutual support, much like communities or ecosystems. Fragility here is not about weakness, but about the delicate line between independence and mutual reliance.

"zen"

fragility as balance

slabs rest on stones in a careful vertical stack. The arrangement feels serene but inherently unstable-any shift in weight or alignment could disturb the entire composition. It captures fragility as a moment of tension between gravity and balance, where stillness is only achieved through constant negotiation. It references both physical balance and the emotional fragility of calmness, something easily disrupted.

"wall-curtain, curtain-wall"

fragility as vulnerability and temporality

The idea of the curtain wall (a non-structural facade) merging with the softness of fabric—something that shelters but also reveals. The thin, translucent material suggests a boundary that is neither fixed nor fully protective. Fragility here is vulnerability: the structure offers enclosure but not security, softness but not permanence. It suggests the architectural potential of impermanence, lightness, and openness.

"complete incompleteness"

fragility as exposed, incomplete structures

This reflects a type of fragility rooted in exposure and unresolved form. The components are clearly parts of a system-frames, panels, supports-but they refuse to complete a whole. The model sits in tension, caught mid-process, showing the instability of something not yet fully formed. Fragility here is not the risk of breaking, but the discomfort of not being finished. It suggests that architecture doesn't always need to resolve—sometimes the incomplete holds its own power.

Next
Next

Dancing Pebbles